APP.TO DI 117 MQ. IN PALAZZINA NUOVA A MARANELLO

APP.TO DI 117 MQ. IN PALAZZINA NUOVA A MARANELLO

324.000 €
116,76 m2
2 Camere
1 Bagni
Codice
MO876E_A2
Città
Maranello
Categoria
Maisonette
Locali
3
Mq Giardino
23,12
mq Terrazzo
66,17
Piano
Terra
Classe energetica
A4
Stato Immobile
In Costruzione
Grado
Signorile
Orientamento
Sud Est
Lati Liberi
2
Giardino
Privato
Tipo Soggiorno
Soggiorno
Tipo Cucina
Angolo Cottura
Riscaldamento
Conta Calorie
Tipo Riscaldam.
Pompa di Calore
Tipo Impianto
Pavimento
Fonte Energetica
Fotovoltaico
Acqua Calda
Centralizzata a Pannelli
Raffrescamento
Split
Infissi
PVC Doppio Vetro
Serramenti
Nuovo
Persiana
Persiana Metallo
Accesso Disabili
Nessuna Barriera
Accesso interno disabili
Pieno accesso
Isolamento
Presente
Isolamento termico
Cappotto esterno
Isolamento acustico
Isolamento completo
Accessori
Aria Condizionata, Ascensore, Bagno Handicap, Cancello Elettrico, Doppi Vetri, Fibra Ottica, Impianto Fotovoltaico, Passaggio Automobilistico, Passaggio Pedonale, Porta Blindata, Rete Dati, Video Citofono, Zanzariere
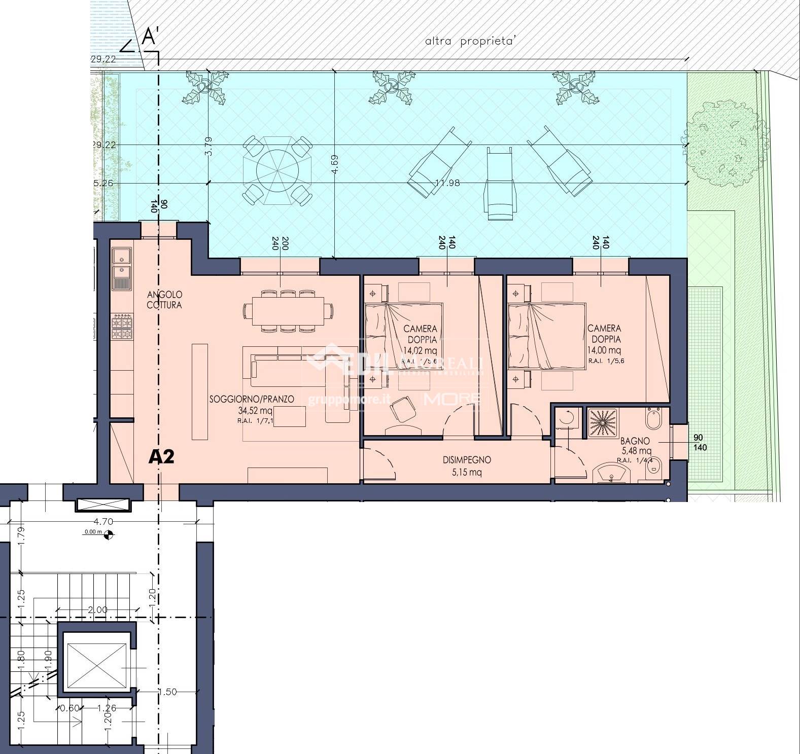
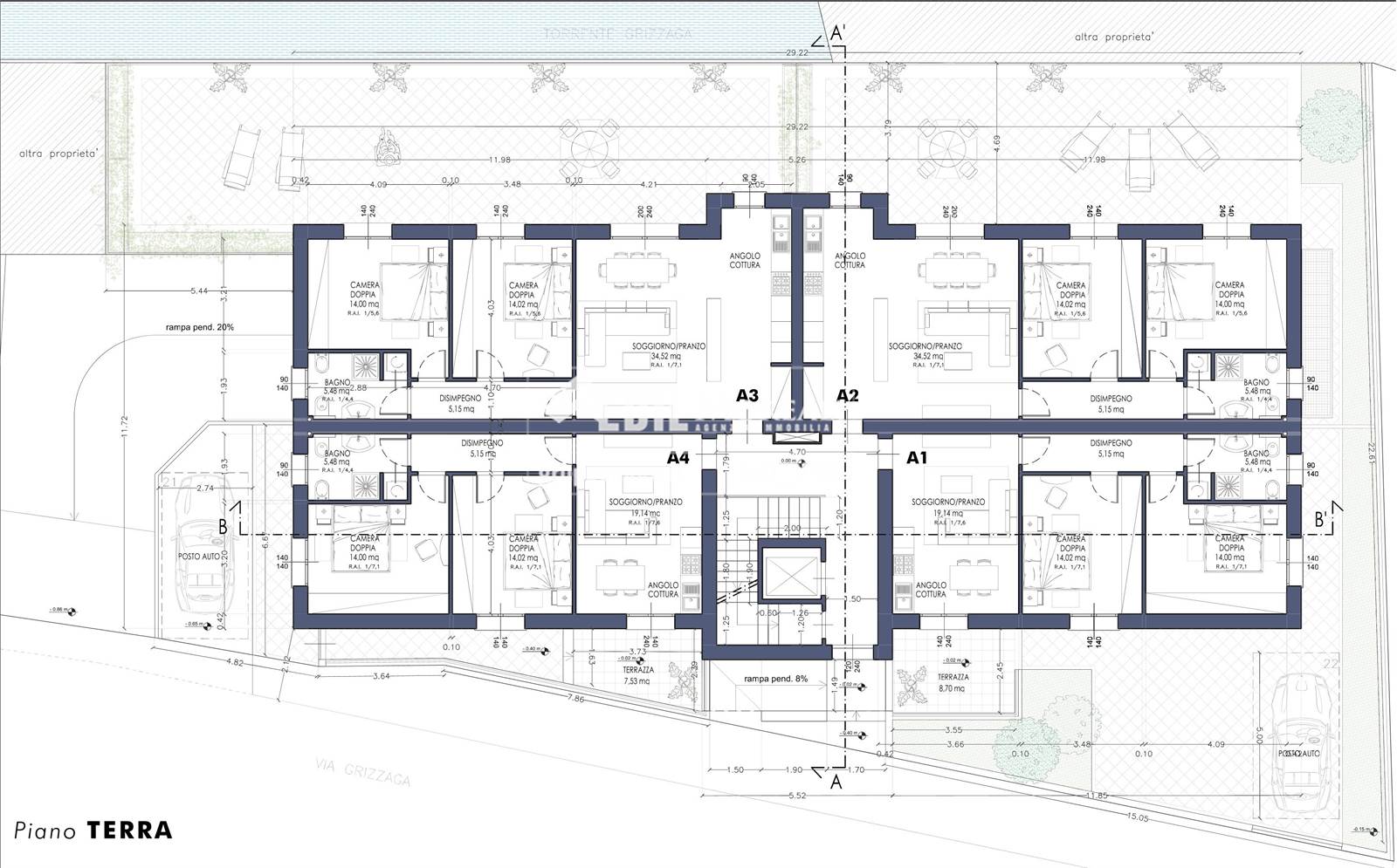
MO876E_A2. Via Grizzaga, Frazione Bell'Italia Di Maranello, in palazzina di prossima realizzazione in classe "A4" (Classe Energetica A4-NZEB) di due piani e 11 unità, vendesi maisonette "A2" di 117 mq. ubicata al piano terra con giardino.
Caratteristica peculiare dell’intervento è l’adozione di avanzate tecnologie impiantistiche d’avanguardia volte al massimo contenimento del consumo energetico nel pieno rispetto dell’ambiente, infatti tutte le unità immobiliari saranno edificate in classe “A4” (secondo la delibera della Regione Emilia Romagna dgr. 20 luglio 2015, n. 967).
Il capitolato prevede finiture di pregio tutte personalizzabili, pavimenti in ceramica grandi formati o parquet, rubinetterie e sanitari di design, riscaldamento a pavimento, aria condizionata, impianto per il ricircolo dell'aria meccanizzato puntuale, pannelli fotovoltaici e solare termico.
App.to così disposto: soggiorno/pranzo con angolo cottura, giardino, disimpegno notte, due camere da letto e bagno finestrato.
Possibilità di personalizzazione degli spazi e delle finiture interne.
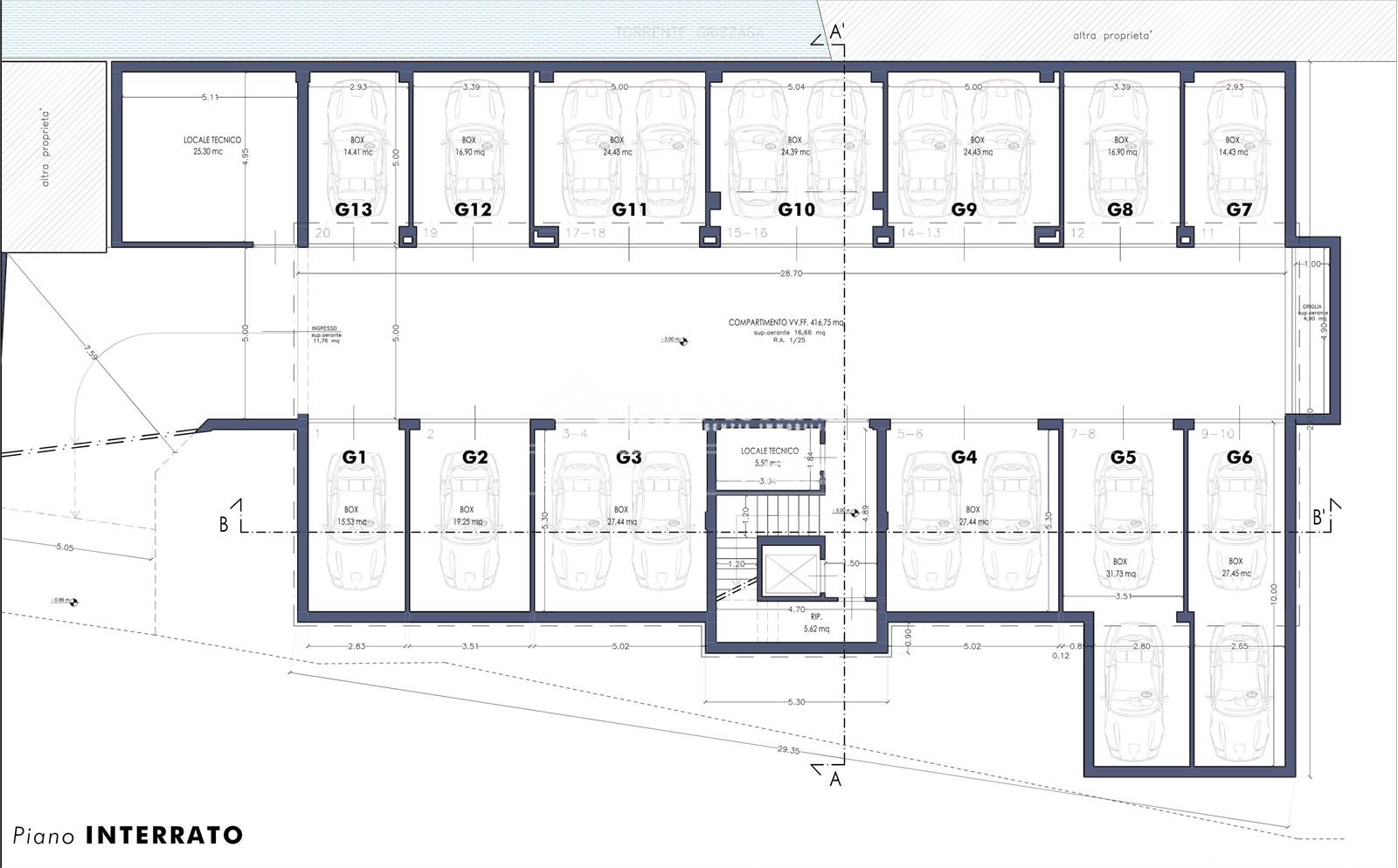
Possibilità di scelta tra diverse autorimesse al piano interrato a parte nel prezzo.
Prezzo:€ 324.000
Consegna giugno 2027.
Per informazioni e visite: 335-6444800 dott. Gollini Enrico, 340-7710085 dott. Corica Giuseppe, 335-6917982 Mastrodomenico Emidio, 335-6880908 geom. Fella Cristiano, 335-7853006 geom. Zara Costantino.
In alternativa ulteriori info sul ns sito GRUPPOMORE.IT digitando CODICE DI RIFERIMENTO o inviaci una mail a gestionecantierigruppomore@cataimm.it

Mappa

VIA GRIZZAGA , Maranello (MO)

Condividi

Cookie preference