MAISONETTE DI 160MQ IN PALAZZINA NUOVA A CASINALBO

MAISONETTE DI 160MQ IN PALAZZINA NUOVA A CASINALBO

520.000 €
160 m2
2 Camere
2 Bagni
Codice
MO860E-UMI5(A2)
Città
Formigine (Casinalbo)
Categoria
Maisonette
Spese condominiali
1.000 €
Locali
5
Box
1
Mq Box
31
Mq Giardino
276
Piano
Terra
Classe energetica
A4
Stato Immobile
In Costruzione
Grado
Signorile
Posizione
Centro
Panorama
Vista Aperta
Orientamento
Sud Ovest
Lati Liberi
3
Giardino
Privato
Arredi
Non Arredato
Tipo Soggiorno
Soggiorno
Tipo Cucina
A Vista
Riscaldamento
Autonomo
Tipo Riscaldam.
Pompa di Calore
Tipo Impianto
Pavimento
Fonte Energetica
Fotovoltaico
Acqua Calda
Centralizzata
Raffrescamento
Split
Infissi
Metallo Triplo Vetro
Serramenti
Nuovo
Persiana
Tapparella PVC
Pavim. Giorno
Parquet
Pavim. Notte
Parquet
Pavim. Cucina
Parquet
Pavim. Bagno
Ceramica
Accesso Disabili
Nessuna Barriera
Accesso interno disabili
Pieno accesso
Accessori
Antifurto, Aria Condizionata, Armadio a Muro, Ascensore, Bagno Handicap, Cancello Elettrico, Doppi Vetri, Impianto Fotovoltaico, Lavanderia, Passaggio Automobilistico, Passaggio Pedonale, Porta Blindata, Rete Dati, Ripostiglio, Tapparelle Elettriche, Tavolini Esterni, Video Citofono, Video Sorveglianza, Zanzariere
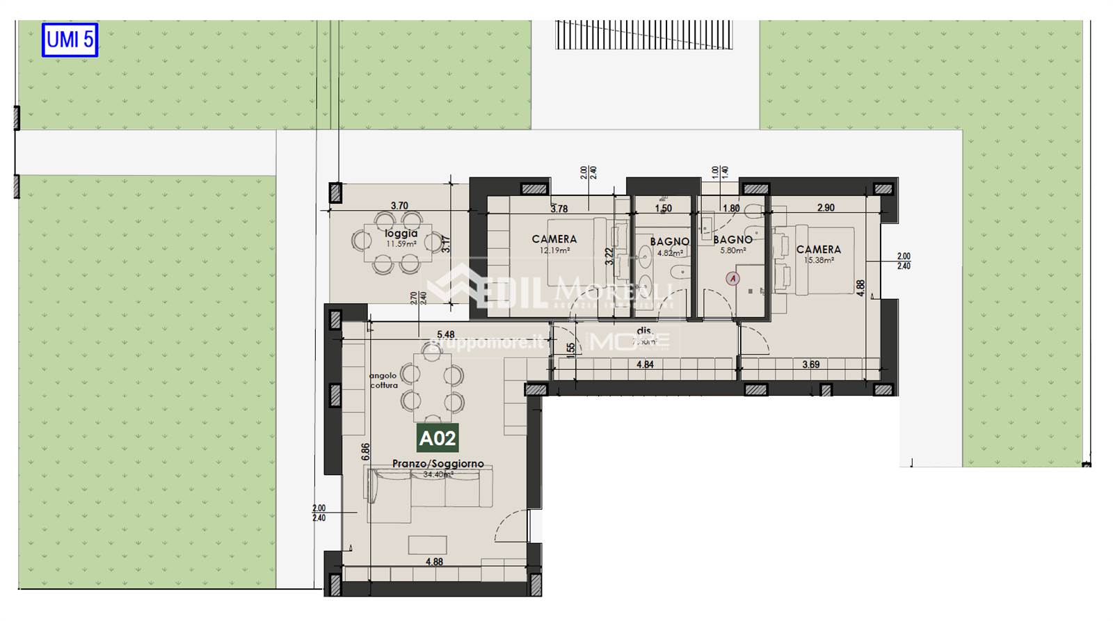
MO860E-UMI5(A2). Nostra esclusiva, Casinalbo, Borgo San Luigi - Ex Salumificio Maletti, in angolo verde comodo a tutti i servizi prossima realizzazione di comparto residenziale (Classe Energetica A4 - NZEB) composto da nr. 9 palazzine e due ville indipendenti. All'interno della palazzina UMI5, di tre piani e sette unità abitative, vendesi maisonette "A2" di 160 mq. comm.
Caratteristica peculiare dell’intervento è l’adozione di avanzate tecnologie impiantistiche d’avanguardia volte al massimo contenimento del consumo energetico nel pieno rispetto dell’ambiente, infatti tutte le unità immobiliari saranno edificate in classe “A4” -NZEB (secondo la delibera della Regione Emilia Romagna dgr. 20 luglio 2015, n. 967).
Il capitolato prevede finiture di pregio tutte personalizzabili, pavimenti in ceramica grandi formati e parquet, rubinetterie e sanitari di design, riscaldamento autonomo in pompa di calore a pavimento, aria condizionata, impianto per il ricircolo dell'aria meccanizzato puntuale, pannelli fotovoltaici, addolcitore acque e predisposizione per antifurto.
Maisonette così disposta: doppio ingresso sia indipendente dal giardino che dal vano scala condominiale, soggiorno con sbocco sul portico e ampio giardino privato di 276 mq., cucina a vista, dis. notte, due camere da letto e due bagni. A completamento della proprietà un garage di 31 mq. al piano interrato.
Possibilità di personalizzazione degli spazi e delle finiture interne.
Prezzo: 520'000 €.
Consegna giugno 2027.
Per informazioni e visite: 340-7710085 dott. Corica Giuseppe, 348-8701469 Geom. Corica Maurizio,335-6444800 dott. Gollini Enrico, 335-6880908 geom. Fella Cristiano, 335-7853006 geom. Zara Costantino.
In alternativa ulteriori info sul ns sito GRUPPOMORE.IT digitando CODICE DI RIFERIMENTO o inviaci una mail gestionecantieri-gruppomore@cataimm.it.it

Condividi

Cookie preference